爆料 最新消息,电白三馆重新选址。

图书馆是公共文化设施,文化局就是建设主体,它来发公告,没毛病。
 
1541711825800.png
1541711791680.jpg
1541711803428.jpg
网上看到的原来的三馆项目简介和效果图,看起来很拉风,很高大上,水东就缺这样的文化地标。但施工估计得要两年时间吧?难免会有噪音,作为家长,确实担心影响孩子学习和高考。政府准备重新选址,我也出个主意:建在水库公园旁边怎么样?周围有几间学校,几个在建大楼盘环绕,和少年活动中心、体育馆、体育公园相邻,未来水东的城央,保留原地下停车场设计可方便市民。关键还有一点:离我家很近,周末和假期可以经常带孩子去感受一下文化气息!大家觉得怎么样?
 
最后编辑:
支持!现在这里一带就是个热火朝天的大工地,可大张旗鼓地建三馆,噪音再大点也不会有人抗议。图书馆是文化公益标志,不管建在哪里,建好后都会带动附近的房价向上。试问有哪个家长不想孩子正正规规坐下来读读书?少去玩手机打游戏吧!
 
浏览附件319694 浏览附件319695 浏览附件319696网上看到的原来的三馆项目简介和效果图,看起来很拉风,很高大上,水东就缺这样的文化地标。但施工估计得要两年时间吧?难免会有噪音,作为家长,确实担心影响孩子学习和高考。政府准备重新选址,我也出个主意:建在水库公园旁边怎么样?周围有几间学校,几个在建大楼盘环绕,和少年活动中心、体育馆、体育公园相邻,未来水东的城央,保留原地下停车场设计可方便市民。关键还有一点:离我家很近,周末和假期可以经常带孩子去感受一下文化气息!大家觉得怎么样?
你应该把那个垃圾论坛水印去掉的
 
浏览附件319694 浏览附件319695 浏览附件319696网上看到的原来的三馆项目简介和效果图,看起来很拉风,很高大上,水东就缺这样的文化地标。但施工估计得要两年时间吧?难免会有噪音,作为家长,确实担心影响孩子学习和高考。政府准备重新选址,我也出个主意:建在水库公园旁边怎么样?周围有几间学校,几个在建大楼盘环绕,和少年活动中心、体育馆、体育公园相邻,未来水东的城央,保留原地下停车场设计可方便市民。关键还有一点:离我家很近,周末和假期可以经常带孩子去感受一下文化气息!大家觉得怎么样?
主意不错,私心也正常,但该片区的土地都能卖上好价钱,当权者肯定倾向于手到拿来的那一种。
 
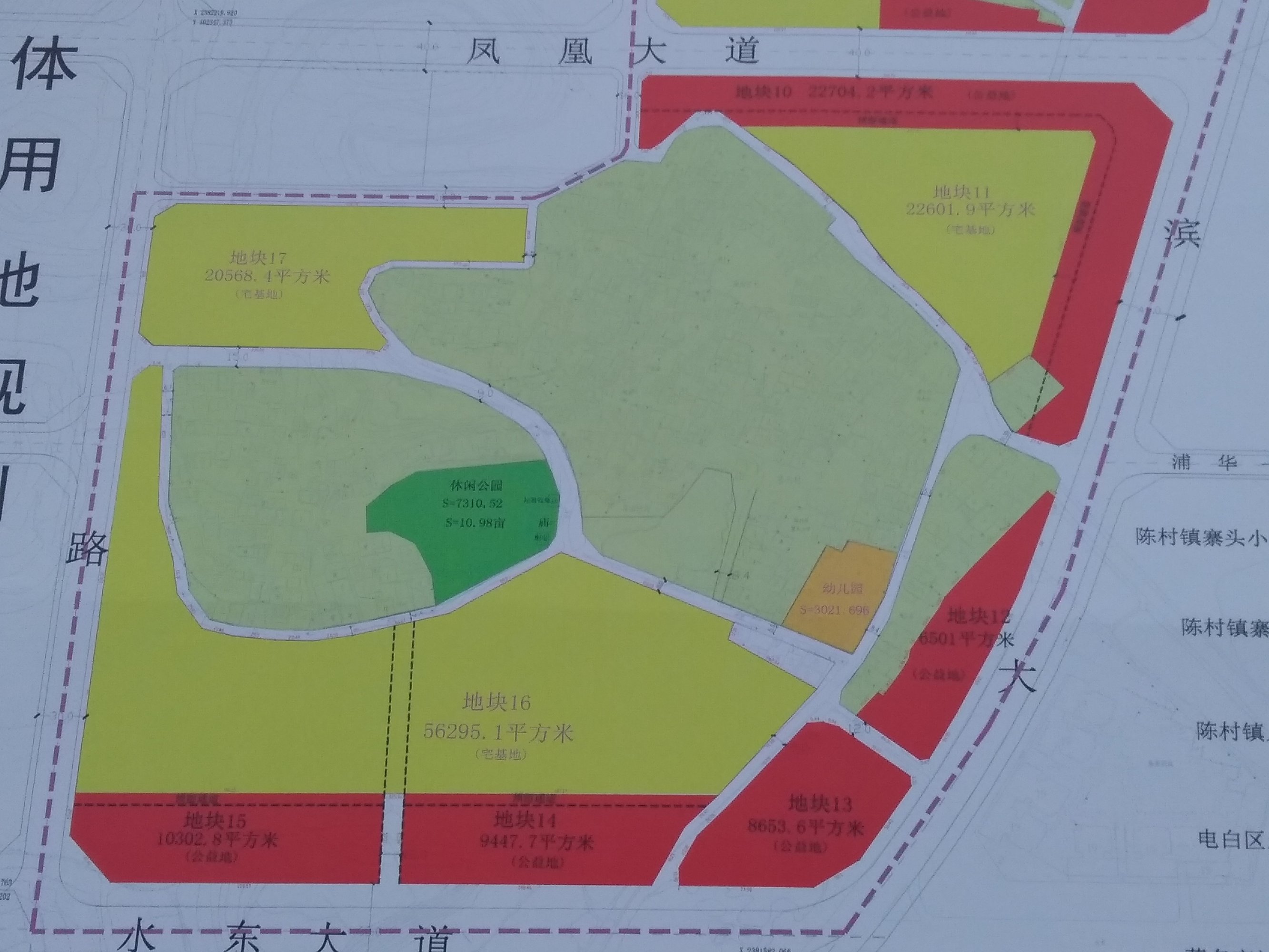
新三馆选址我认为在体育馆-电白碧桂园工地周边合适,既有较大合适地块,又可以与周边热火朝天的工地同期建设,避免扰民问题。交通便利,向东通海滨大道,向北通325国道,向南通水东主城区,向西通迎宾大道万达广场,有利于车辆快速疏解。既能方便水东老城居民,又能方便其他乡镇自驾来的群众
 
一小搬到广南、妇幼搬到广南、体育中心在广南、御湖公园在广南、青少年活动中心还是在广南,你们真的认为把电白的基础配套项目基本都放在广南片区真的对电白好吗?

你们口口声声说可以让广南片区的地卖个好价钱,但是你们了解过广南片区还有几亩地可以卖吗?一小妇幼御湖公园碧桂园等这几个建成后,剩余的地大部分都是寨头彭村等村的宅基地了,还有什么发展可言?
 
都醒醒好吗!碧桂园东部就是寨头的宅基地,体育路南部又是彭村的宅基地,广南已经没有发展可言!你看到的是一片片不断在建的城中村~

IMG_20181018_141604.jpg
IMG_20181018_141600.jpg
 
基辛格说,“权力是最好的春药。”其实,权力又岂止是春药?权力还是魔力致幻剂。当一个人手握绝对权力后,就容易迷失心智,从而觉得自己无所不能。
 
最后编辑:
八,反正我是不会给区政府和扫街书记点赞,如果他们是真的为电白好的话,当初就不会同意选在那里,出发点和用意根本就是人头猪脑,加没良心。更不会和那些老板权钱交易了。是老师和学生出街,搞大事情了才被迫终止的。要点赞,给老师,给学生,给电白论坛,给微信上写文章的人点赞。

我同意。我的赞是给予这一届电白一中的学生和老师!你们是给力的!!是你们据理力争,保存了校园完整,对得起‘电白一中’师生的名字!
我以这届师弟师妹为荣!
 
选址在水东城区什么地方好?来点建设性提议吧,别只顾自己一亩三分地!
 
干趣,建在旧一中原址,或东湖边足球场那个位置,可形成环水东湾一道亮丽风景,文化地标。
 
我同意。我的赞是给予这一届电白一中的学生和老师!你们是给力的!!是你们据理力争,保存了校园完整,对得起‘电白一中’师生的名字!
我以这届师弟师妹为荣!
一中师生都好棒
 

正在浏览此帖子的用户

后退
顶部